Оставьте свой телефон и мы свяжемся с вами!
Или позвоните нам по номеру:
+7 (968) 557-30-40
Нажимая на кнопку, вы соглашаетесь с политикой обработки персональных данных
Ремонт квартир
Наш объект: ЖК Серебряный фонтан-3
В рамках нашего следующего проекта мы представляем создание уникального интерьера в двухкомнатной квартире в престижном жилом комплексе «Серебряный фонтан». Команда «ДА! Долгаймер-СТРОЙ» применила свои знания и творческий подход для реализации концепции, ориентированной на комфорт и гармонию эстетики, обеспечивая высокое качество выполнения и отражая индивидуальность клиентов в каждой детали интерьера.
С самого начала работы мы акцентировали внимание на деталях — от разработки концепции интерьера до финальных штрихов отделки. Мы учитывали уникальность каждого проекта, создавая интерьеры с собственной историей. Интересной задачей была гармонизация современных дизайнерских элементов с классическими акцентами. Использование нейтральных цветов в сочетании с яркими акцентами обеспечивало визуальный баланс и уют.
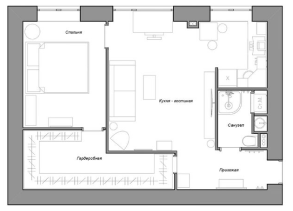
На этапе планирования мы выявили необходимость внесения изменений в планировку квартиры для улучшения функциональности и оптимизации пространства. Наша команда дизайнеров проанализировала потребности клиентов и предложила несколько вариантов, сопровождаемых 3D-визуализациями. Это позволило клиентам заранее оценить финальный вид интерьера. В итоге была выбрана оптимизированная планировка, включающая уютную гостиную, современную кухню и спальню, ставшую истинным уголком для отдыха.
В интерьере были использованы высококачественные отделочные материалы, такие как дубовая паркетная доска, натуральный камень и итальянская плитка, что обеспечило эстетическую привлекательность и долговечность. Освещение представлено интегрированными светильниками и дизайнерскими люстрами, гармонично подчеркивающими элегантность и современность пространства.
Ремонтные работы проводились высококвалифицированной командой специалистов, включая дизайнеров интерьера, мастеров отделки, электриков и сантехников. Мы отбирали только опытных подрядчиков, использующих проверенные материалы. Важной частью проекта стало внутреннее наполнение квартиры, включающее уникальную мебель и аксессуары, которые подчеркивают индивидуальность пространства и создают гармоничный стиль.
Мы завершили проект в оговоренные сроки, что стало возможным благодаря четкой организации и эффективной коммуникации между всеми участниками. Каждый этап был тщательно спланирован и проверен что исключило задержки и позволило создать комфортное и функциональное пространство. Компания «ДА!Долгаймер-СТРОЙ» всегда готова реализовать ваши идеи с индивидуальным подходом и высоким уровнем профессионализма.
Ремонт без стресса? Мы можем это сделать!
Оставьте свои контакты: